VISITE LIBRE
2025-Oct-19 | 10:00 - 12:00

































Description
Visite libre ce dimanche 19 octobre de 10h-12h. Spacieuse propriété située dans un beau quartier familial, tout près des commerces et de la piste cyclable. Elle offre trois chambres au total, dont deux à l'étage et une au sous-sol, où l'on retrouve un walk-in et un magnifique garde-robe en cèdre. On y trouve aussi une installation laveuse-sécheuse au rez-de-chaussée ainsi qu'un espace supplémentaire servant d'atelier dans l'ancien garage. Cette maison dégage une atmosphère chaleureuse où l'on ressent tout l'amour et le soin qui lui ont été apportés au fil des années.
Située dans un quartier paisible et recherché, cette
propriété se distingue par son entretien soigné, son
ambiance chaleureuse et le soin constant apporté au fil des
années par un seul propriétaire. Elle offre un cadre de vie
confortable et invitant, idéal pour une petite famille ou
un couple à la recherche d'un environnement calme et
convivial.
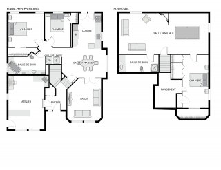
Rez-de-chaussée :
On y retrouve un bel et grand atelier bien aménagé,
anciennement un garage avec porte de service, offrant de
hauts plafonds -- parfait pour les bricoleurs, les artistes
ou les amateurs de projets créatifs. Le rez-de-chaussée
comprend également deux chambres à coucher lumineuses, une
salle de bain complète, ainsi qu'un espace laveuse-sécheuse
au rez-de-chaussée, donc pas besoin de descendre au
sous-sol. Le grand salon profite d'une division intime,
créant une atmosphère chaleureuse et conviviale, idéale
pour les moments en famille. La galerie est accessible
directement à partir de la cuisine, offrant un accès facile
pour les BBQ, les repas en famille ou entre amis, et pour
profiter pleinement des belles journées d'été.
Sous-sol :
Vous serez séduit par la spacieuse salle familiale
agrémentée d'un foyer au gaz, parfaite pour se détendre
lors des soirées d'hiver. Une grande chambre à coucher avec
garde-robe en cèdre naturel, reconnue pour son parfum
agréable et ses propriétés anti-humidité, complète le tout.
Le sous-sol offre également beaucoup d'espace de rangement,
idéal pour une vie organisée et sans compromis.
Ce qu'on aime :
-Système central à air pulsé avec thermopompe pour un
confort optimal toute l'année
-Aspirateur central pratique pour l'entretien quotidien
-Système d'irrigation facilitant l'entretien du terrain
-Galerie clôturée, parfaite pour relaxer en toute intimité
ou laisser jouer les animaux en sécurité
-Propriété minutieusement entretenue, un seul propriétaire
depuis la construction
-Située dans un beau quartier paisible et familial, à
proximité des commerces, des écoles et d'une piste cyclable
Inclus : Stores, pôles, rideaux, système d'alarme, caméras de surveillance, aspirateur central et accessoires
Exclus : Borne de recharge de voiture EV Duty
Emplacement
Détails des pièces
Chambre | Dimensions | Niveau | Revêtement |
---|---|---|---|
Hall d'entrée | 4.8 x 7.4 P | Rez-de-chaussée | Céramique |
Salon | 12.4 x 15.3 P | Rez-de-chaussée | Bois |
Salle à manger | 9.11 x 15.6 P | Rez-de-chaussée | Céramique |
Cuisine | 10.3 x 12.2 P | Rez-de-chaussée | Céramique |
Chambre à coucher principale | 11.11 x 12.11 P | Rez-de-chaussée | Bois |
Salle de bains | 6.1 x 13.1 P | Rez-de-chaussée | Céramique |
Chambre à coucher | 9.0 x 11.10 P | Rez-de-chaussée | Bois |
Atelier | 11.10 x 18.11 P | Rez-de-chaussée | Plancher flottant |
Salle familiale | 14.3 x 31.9 P | Sous-sol | Plancher flottant |
Chambre à coucher | 9.4 x 19.2 P | Sous-sol | Plancher flottant |
Salle de bains | 6.1 x 13.10 P | Sous-sol | Céramique |
Caractéristiques
Sous-sol | 6 pieds et plus, Totalement aménagé |
---|---|
Mode de chauffage | Air soufflé, Plinthes électriques |
Allée | Asphalte |
Revêtements | Autre, Pierre, Vinyle |
Toiture | Bardeaux d'asphalte |
Fondation | Béton coulé |
Aménagement du terrain | Clôturé, Patio |
Type de fenêtre | Coulissante, Manivelle |
Salle de bains/salle d'eau | Douche indépendante |
Énergie pour le chauffage | Électricité |
Stationnement | Extérieur |
Foyers-poêles | Foyer au gaz |
Armoires | Mélamine |
Système d'égouts | Municipal |
Approvisionnement en eau | Municipalité |
Topographie | Plat |
Fenêtres | PVC |
Zonage | Résidentiel |
Cette inscription est présentée en collaboration avec EXP AGENCE IMMOBILIÈRE